-
Korea National Open University강원지역대학(춘천시)
원하시는 층을 선택하시면, 해당 층에 주요시설 이용안내를 받으실 수 있습니다.
- 4F 학생회사무실, 강의실
배치도
시설1 : 학생회사무실
033-240-6644
- 3F 학장실, 강의실
배치도
시설
- 2F 학생서비스센터, 행정실, 교수휴게실, 강의실
배치도
시설 : 학생서비스센터
학생서비스센터는 2층입니다.
이용시간 09:00 ~ 18:00지역대학 휴관일
- 신정 개교기념일(3월 9일) , 성탄절, 석가탄신일, 설날연휴(설 전날, 설날, 설 다음날), 추석연휴(추석 전날, 추석, 추석 다음날)에는 개방하지 않습니다.
033-240-6611 ~6
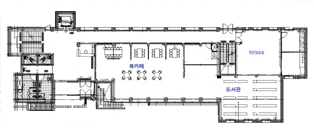
- 1F 북카페, 도서관, 전산실습실
배치도
시설 1 : 북카페
이용시간 : 09:00 ~ 20:00
컴퓨터를 사용하시려면 PC매니저를 로그인 후 사용하시면 됩니다.이용자격
- 우리대학 및 대학원 재학생
- 우리대학 교직원
- 기타 학장이 인정하는 자
지역대학 휴관일
- 법정공휴일, 개교기념일(3월9일)
033-240-6617 (안내실)
시설 2 : 도서관
도서관은 국내 단행본 및 잡지, 학습활동에 필요한 학습자료와 학과 교재를 소장하고 있으며, 무인카드복사기 설치로 문헌복사가 가능합니다.
또한 학술정보 검색을 위한 검색용 PC가 설치되어 소장자료에 대한 서지 정보 및 E-Book등 다양한 학술정보를 검색할 수 있습니다.
033-240-6655 (도서관)
도서대출
도서대출은 이용코자 하는 자료의 소장여부를 검색용단말기(자료열람실내) 또는 직접 서가에서 열람한 후 선택하여 → 신청(학생증과 함께 제출) → 관외 대출,반납(5책 12일간[1회연장])
- 단, 교재, 논문, 사전류 제외자료이용 한도
자료이용한도 자료명 구분 대출(이용)한도 연장 비고 도서 학부생 5책 12일 1회 가능 당해학기 등록생 대학원생 10책 30일 1회 가능 당해학기 등록생 이용 시간 (자료대출, 열람 등)
도서관
- 월~금 09:00 ~ 18:00
- 토~일, 공휴일(국경일 포함) : 휴실
이용자격
- 우리대학 및 대학원 재학생
- 우리대학 교직원
- 기타 학장이 인정하는 자
시설 3 : 전산실습실
전산실습실은 실습을 위한 학생들만 이용할 수 있는 공간입니다.
이용시간 : 09:00 ~ 18:00
컴퓨터를 사용하시려면 PC매니저를 로그인 후 사용하시면 됩니다.033-240-6615 (전산실)
- B1학생휴게실, 실험실습실, 강의실
배치도
시설1 : 학생휴게실
학업에 열중하고 있는 학우들의 휴식을 달래고, 학우들 상호간의 원활한 교류를 도모하고자 아래와 같이 휴게시설을 마련하여 운영하고 있습니다. 우리 지역대학 학생이면 누구나 이용할 수 있사오니 언제든지 이용하시기 바랍니다.
033-240-6617 (관리실)

한국방송통신대학교 강원지역대학(춘천시) 전경 사진입니다.